Snadná montáž v několika základních krocíchDržák je osazen uchyceními VESA až do 600 x 400 mm, pro případ montáže větších displejů je přibalen i adaptér zvyšující VESA až na 800 x 600 mm, takže bude vyhovovat i těm největším obrazovkám. V kabinetu za displejem je prostor pro umístění PC, přehrávače, tenkého klienta apod. Pro montáž těchto malých zařízení je stojan vybaven i rozhraním VESA 75/100 a možností uzamčení s pomocí dokoupitelného krytu.
Stabilita a bezpečnost celého systémuStojan je vhodný i do prostor se zvýšeným pohybem osob a k montáži dotykových výukových displejů. Systém stojanu, displeje a přídavné elektroniky je ukotven ke stěně pomocí nastavitelných držáků. Hmotnost celé sestavy spočívá na podlaze, ke které je pevně přikotvena. V případě nemožnosti kotvit stojan do podlahy lze využít možnosti volitelného příslušenství (viz níže).
Antikolizní senzorPodlahový stojan SmartMetals 052.7150 W je vybavený antikolizním senzorem, který snižuje riziko poškození zdvihu a displeje. Pokud stojanu brání při pohybu překážka, automaticky se zastaví. Navíc můžete drátový dálkový ovladač připevnit přímo k displeji, takže při změně polohy máte nad pohybem displeje stálou kontrolu.Klíčové vlastnosti
- Snadná montáž v několika základních krocích (návod níže)
- Luxusní vzhled i v nejvyšší poloze
- Vyžaduje montáž k podlaze a přichycení ke stěně (nastavitelné kotvení)
- Montážní rozhraní s většinou standardů VESA
- Bez naprogramovaných pozic
- Pro nastavení výšky je z bezpečnostních důvodů třeba stále držet tlačítko nahoru / dolů, po jejich uvolnění se pohyb zastaví Technická specifikace
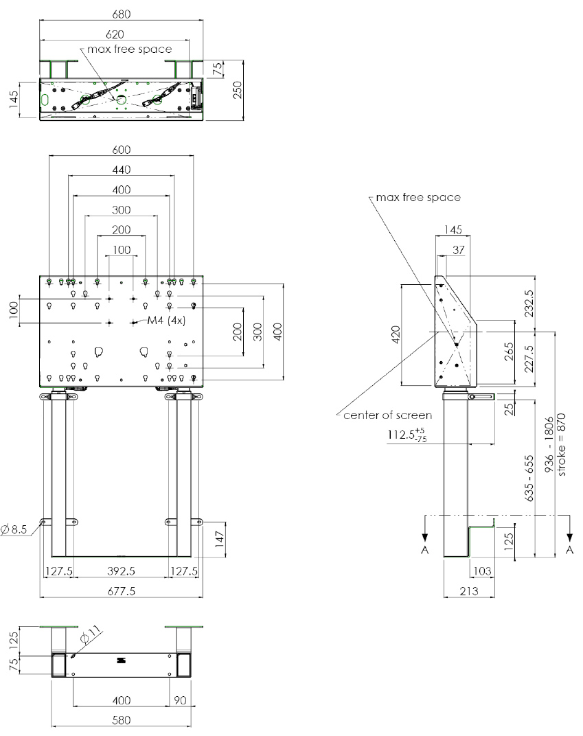
- Max. rozsah VESA rozhraní 800 x 600 mm
- Dálkové ovládání: zdvih 870 mm, rychlost pohybu max. 38 mm/s
- Výška středu displeje 936 – 1 806 mm
- Maximální nosnost 120 kg
- Hmotnost: 36 kg
- Reakční doba antikolizního systému: 1,5 s po aktivaci zdvihu
Řešení pro každé přání Rozšiřující příslušenství umožňuje
komplexní využití stojanu na míru vašim potřebám.
- Držák videokonferenční kamery
- Polička pro klávesnici
- Polička pro laptop
- Dodatečný úchyt spodní časti stojanu ke stěně (pokud nelze vrtat do podlahy)
- Velký podstavec pro volné postavení na podlahu (bez nutnosti fixovat ke stěně)
- Uzamykatelný kryt úložného prostoru
- Postranní smaltované / lakované bílé tabule (včetně montážní sady)
- Adaptér pro změnu pozice displeje na šířku / na výšku
- Odkazy na související produkty najdete níže
